AGIRA RESORTS & SERVICE APARTMENT COMPLEX

PROPOSED HOTEL & SERVICE APARTMENT COMPLEX FOR AGIRA RESORTS BY VISHRANTHI DEVELOPERS @ SRI PERUMBUDUR, CHENNAI

Area: 15,000 sqm

Concept Design, Detailed Design

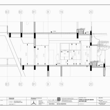
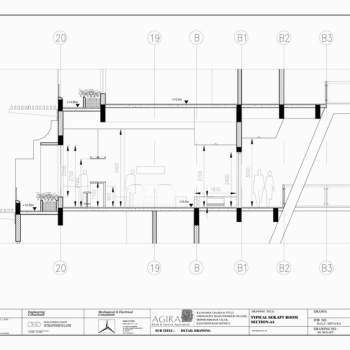
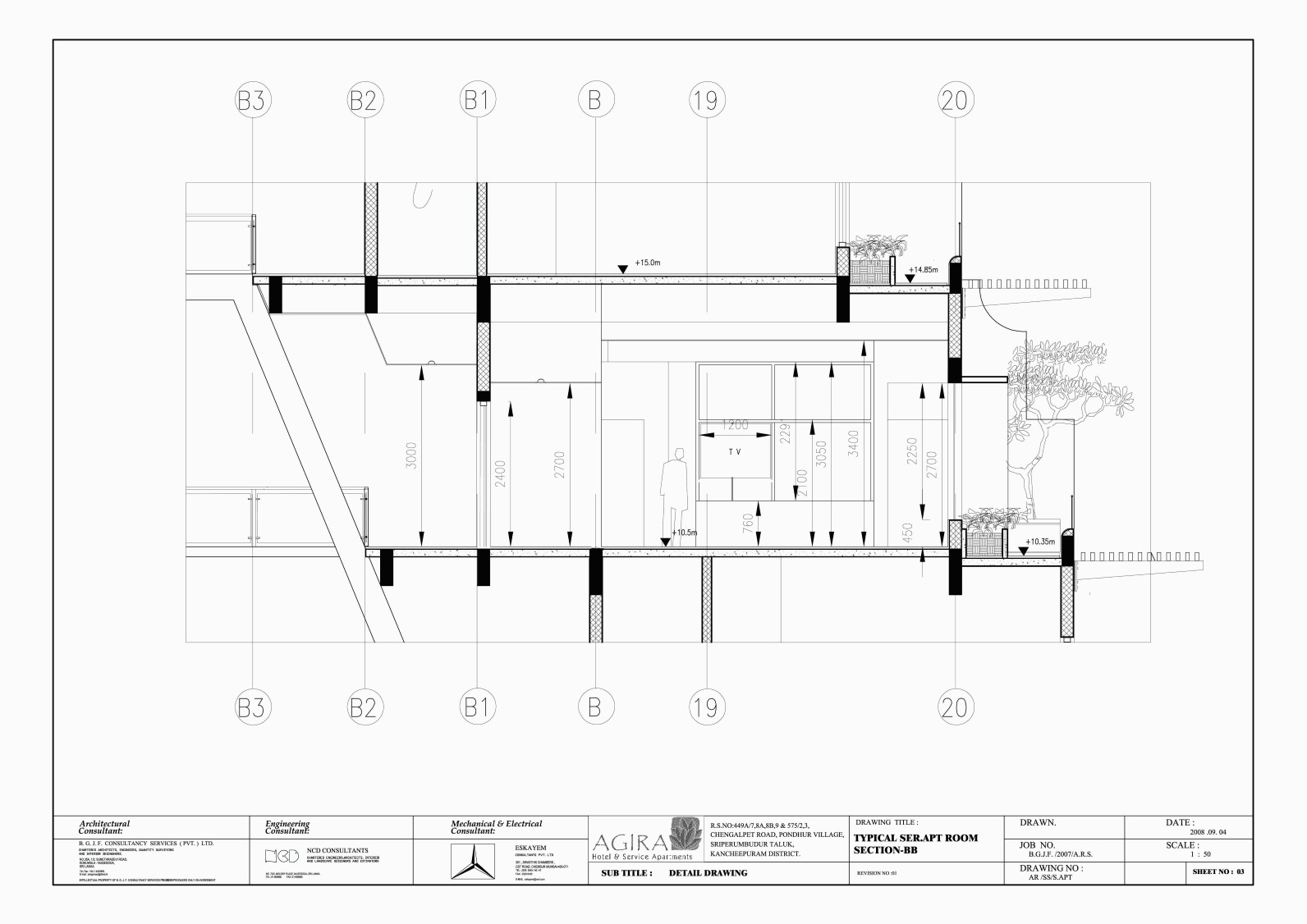
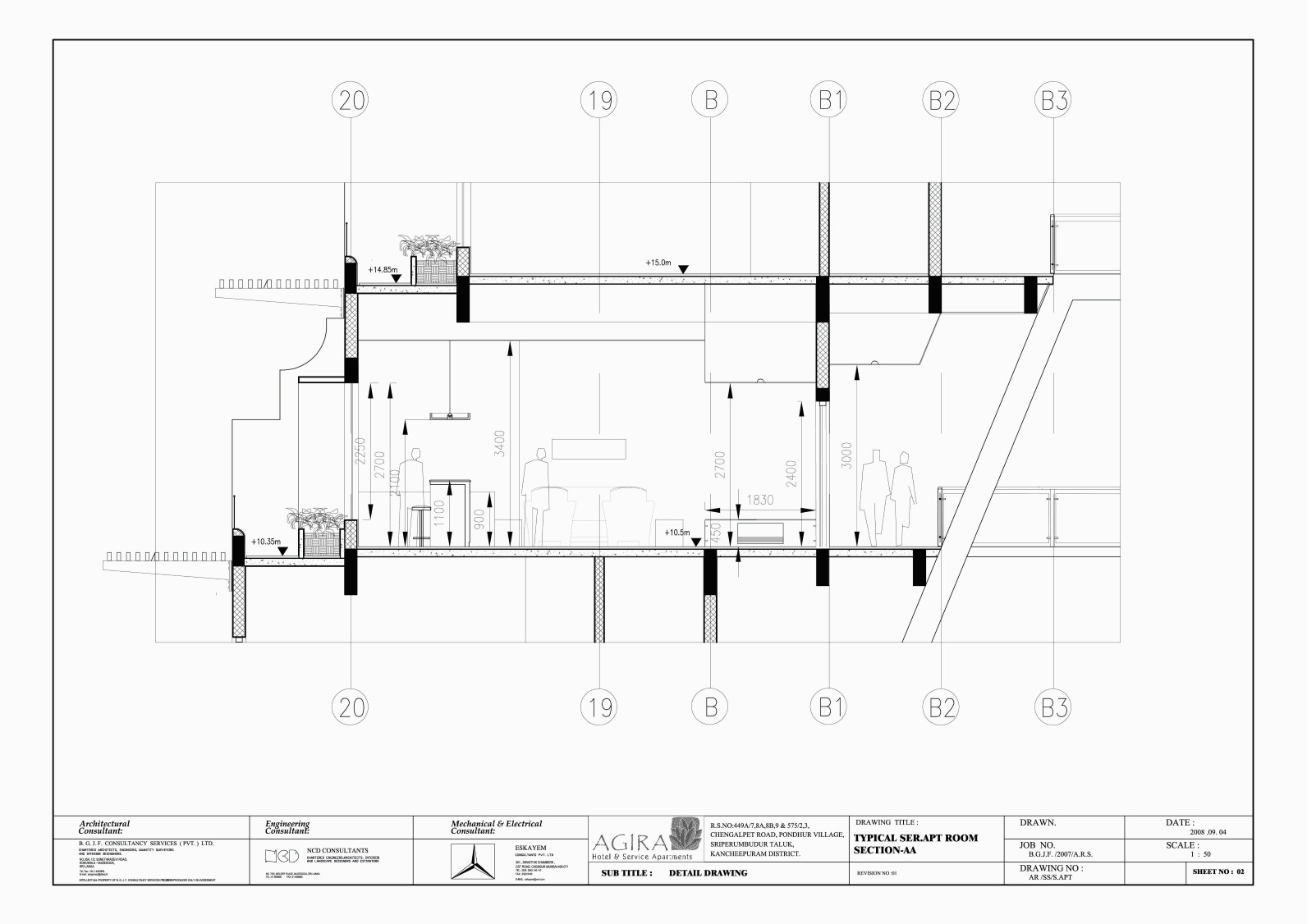
The design was for a 100 key city hotel, planned as part of a new Airport infrastructure for Sri Perumbudur, Chennai.

The decision to build the Airport was rescinded by the State, resulting in the project being abandoned.

The design attempted to create a spatially responsive architecture and a modern building form in keeping with the concept of Chennai as an emerging mega city.